Skip To Content

895 Arcade Ave

Seekonk, MA 02771
  • $2,750
  • STATUS: Active
  • MLS #: 73492374
UPDATED: 67 min ago
$2,750
  • 0
    BEDS
  • 1.01
    ACRES
  • 0
    BATHS
  • 0
    1/2 BATHS
  • 1,100
    SQFT
  • $3
    $/SQFT
Type:
Commercial-Lease
Built:
1965
County:

School Ratings & Info

Listing courtesy of Sharon Reynolds of New England Premier Real Estate, LLC.

Description

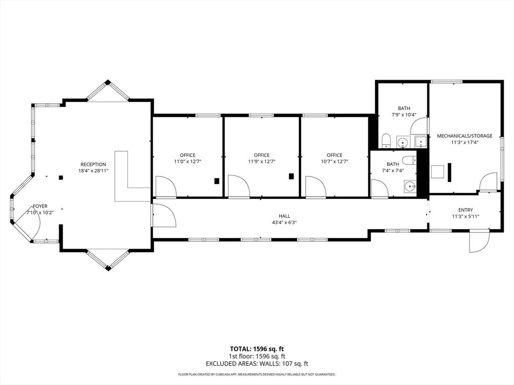
Prime commercial location in Seekonk, MA!! Perfect opportunity to enjoy approximately 1,100 sqft of office space with unobstructed views of Old Grist Mill Pond. Enter the space to a large receiption area with lots of natural light and views of Old Grist Mill Pond, then continue down the hallway where you will find three private offices and a restroom. Conveniently located on busy Arcade Avenue, providing a large amount of traffic and visibility for your business, this location is close to restaurants and shopping on Rt. 6 and provides easy highway access to Rt. 195. Zoned commercial, with a current floor plan fit for an office or similar use; Landlord willing to make minor modifications. The exterior of the building is scheduled for some painting and minor maintenance with the arrival of a bit warmer weather within the next 2 months, providing a fresh look for the new tenant. Easy to show.



The property listing data and information set forth herein were provided to MLS Property Information Network, Inc. from third party sources, including sellers, lessors and public records, and were compiled by MLS Property Information Network, Inc. The property listing data and information are for the personal, non commercial use of consumers having a good faith interest in purchasing or leasing listed properties of the type displayed to them and may not be used for any purpose other than to identify prospective properties which such consumers may have a good faith interest in purchasing or leasing. MLS Property Information Network, Inc. and its subscribers disclaim any and all representations and warranties as to the accuracy of the property listing data and information set forth herein. Data last updated 2026-04-16T18:04:45.173.
www.teamrosoremax.com/homes/174469650
Print Image

895 Arcade Ave Seekonk, MA 02771

  • Price: $2,750
  • Status: Active
  • On Site: Days
  • Updated: 67 min ago
  • MLS #: 73492374
0
Beds
0
Baths
0
½ Baths
1.01
Acres
1,100
SQFT
$3
$/SQFT
1965
Built
County:
Bristol
Property Description
Prime commercial location in Seekonk, MA!! Perfect opportunity to enjoy approximately 1,100 sqft of office space with unobstructed views of Old Grist Mill Pond. Enter the space to a large receiption area with lots of natural light and views of Old Grist Mill Pond, then continue down the hallway where you will find three private offices and a restroom. Conveniently located on busy Arcade Avenue, providing a large amount of traffic and visibility for your business, this location is close to restaurants and shopping on Rt. 6 and provides easy highway access to Rt. 195. Zoned commercial, with a current floor plan fit for an office or similar use; Landlord willing to make minor modifications. The exterior of the building is scheduled for some painting and minor maintenance with the arrival of a bit warmer weather within the next 2 months, providing a fresh look for the new tenant. Easy to show.
Exterior Features

Waterfront YN No

Interior Features

Building Area Total 1100

Property Features

Association YN No Business Type Commercial Home Warranty YN No Senior Community YN No Tax Annual Amount 6211 Tax Year 2026 Utilities Public WaterNatural Gas Available Zoning Commercial

Listing information © 2026 MLS Property Information Network. All information is deemed reliable but should be independently verified.
Listing provided courtesy of Sharon Reynolds of New England Premier Real Estate, LLC: 401-234-2024.


The property listing data and information set forth herein were provided to MLS Property Information Network, Inc. from third party sources, including sellers, lessors and public records, and were compiled by MLS Property Information Network, Inc. The property listing data and information are for the personal, non commercial use of consumers having a good faith interest in purchasing or leasing listed properties of the type displayed to them and may not be used for any purpose other than to identify prospective properties which such consumers may have a good faith interest in purchasing or leasing. MLS Property Information Network, Inc. and its subscribers disclaim any and all representations and warranties as to the accuracy of the property listing data and information set forth herein. Data last updated 2026-04-16T18:04:45.173.
 
https://bt-photos.global.ssl.fastly.net/mlspin/orig_boomver_2_73492374_2.jpg https://bt-photos.global.ssl.fastly.net/mlspin/orig_boomver_2_73492374_2.jpg https://bt-photos.global.ssl.fastly.net/mlspin/orig_boomver_2_73492374_2.jpg
Logo
Re/Max Vantage
77 State Road
Dartmouth MA, 02747
Listing courtesy of Sharon Reynolds of New England Premier Real Estate, LLC.